


一、術語和定義
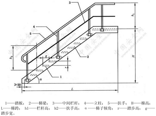
1、固定式鋼斜梯;永久性安裝在建筑物或設備上,與水平面成30°~75°傾角的踏板鋼梯(見圖1)。
2、梯梁(梯框);用來安裝踏板或其他橫向承載件的梯子側邊構件。
3、踏板;供使用者上下梯時腳踩踏的梯子水平構件,其前后深度不小于80mm。
4、踏步高;相鄰兩踏板間的垂直距離。
5、踏步寬;相鄰兩踏板突緣間的水平距離。
6、內側凈寬度;兩梯梁內側平行于踏板測量的距離,簡稱梯寬。
7、梯段高度;梯梁上端基準面與下端基準面間的垂直距離,簡稱梯高。
8、扶手(系統)扶手(系統);安裝在斜梯外側邊緣保護人員安全的阻擋型框架結構。當其作為斜梯扶手系統部件名稱時,是由使用者手握作為支撐并與梯段傾角線平行的扶手系統構件。
9、傾角;兩梯梁中心線所在平面與水平面的夾角。

二、一般要求
1、材料
鋼斜梯采用鋼材的力學性能應不低于Q235-B,并具有碳含量合格保證。
2、鋼斜梯傾角
固定式鋼斜梯與水平面的傾角應在30°~75°范圍內,優選傾角為30°~35°。偶爾性進入的最大傾角宜為42°。經常性雙向通行的最大傾角宜為38°。在同一梯段內,踏步高與踏步寬的組合應保持一致。常用的鋼斜梯傾角與對應的踏步高r、踏步寬g組合(g+2r=600)示例見表1,其他傾角可按線性插值法確定。常用鋼斜梯傾角和高跨比(H:L)示例見表2。
表1踏步高r、踏步寬g尺寸常用組合(g+2r=600)

表2常用鋼斜梯傾角和高跨比

三、結構要求
1、梯高
梯高宜不大于5m,大于5m時宜設梯間平臺(休息平臺),分段設梯。單梯段的梯高應不大于6m,梯級數宜不大于16。
2、內側凈寬度
斜梯內側凈寬度單向通行的凈寬度宜為600mm,經常性單向通行及偶 爾雙向通行凈寬度宜為800mm,經常性雙向通行凈寬度宜為1000mm。斜梯內側凈寬度應不小于450mm,宜不大于1100mm。
3、踏板
踏板的前后深度應不小于80mm,相鄰兩踏板的前后方向重疊應不小 于10 mm,不大于35mm。在同一梯段所有踏板間距應相同。踏板間距宜為225mm~255mm。頂部踏板的上表面應與平臺平面一致,踏板與平臺間應無空隙。踏板應采用防滑材料或至少有不小于25mm寬的防滑突緣。應采用厚度不小于4mm的花紋鋼板,或經防滑處理的普通鋼板,或采用由25mmx4mm扁鋼和小角鋼組焊成的格板或其他等效的結構。
4、梯梁
梯梁應有足夠的剛度以使結構橫向撓曲變形最小,并由底部踏板的突緣向前突出不小于50mm(見圖1)。
5、梯子通行空間
在斜梯使用者上方,由踏板突緣前端到上方障礙物沿梯梁中心線垂直方向測量距離應不小于1200mm。在斜梯使用者上方,由踏板突緣前端到上方障礙物的垂直距離應不小于2000 mm。
6、扶手
梯寬不大于1100mm兩側封閉的斜梯,應至少一側有扶手,宜設在下梯方向的右側。梯寬不大于1100mm一側敞開的斜梯,應至少在敞開一側裝有梯子扶手。梯寬不大于1100mm兩邊敞開的斜梯,應在兩側均安裝梯子扶手。梯寬大于1100mm但不大于2200mm的斜梯,無論是否封閉,均應在兩側安裝扶手。梯寬大于2200mm的斜梯,除在兩側安裝扶手外,在梯子寬度的中線處應設置中間欄桿。梯子扶手中心線應與梯子的傾角線平行。梯子封閉邊扶手的高度由踏板突緣上表面到扶手的上表面垂直測量應不小于860mm,不大于960mm。
斜梯敞開邊的扶手高度應不低于GB4053.3中規定的欄桿高度。扶手應沿著其整個長度方向上連續可抓握。在扶手外表面與周圍其它物體間的距離應不小于60mm。扶手宜為外徑30mm~50mm,壁厚不小于2.5mm的圓形管材。對于 非圓形截面的扶手,其周長應為100mm~160mm。非圓形截面外接圓直徑應不 大于57mm,所有邊緣應為圓弧形,圓角半徑不小于3mm。支撐扶手的立柱宜采用截面不小于40mmx40mmx4mm角鋼或外徑為30mm~50mm的管材。從第一級踏板開始設置,間距不宜大于1000mm。中間欄桿采用直徑不小于16mm圓鋼或30mmx4mm扁鋼,固定在立柱中部。


