

鋼格板是用扁鋼按照一定的間距和橫桿進行交叉排列,并且焊接成中間帶有方形格子的一種鋼鐵制品,鋼格板一般采用碳鋼制作,表面熱鍍鋅,可以起到防止氧化的作用。下面就以圖文形式說說鋼格板各部件的名稱和作用。
荷載扁鋼:鋼格板主要材料,主要承載負載,均勻分布的扁鋼其兩端固定的鋼梁上。

橫桿:扭絞方鋼,圓鋼、方鋼以正交方向焊到荷載扁鋼之上,用于固定扁鋼。

包邊板:與受荷扁鋼具有相同截面的扁鋼,與受荷扁鋼的端頭焊接,在包邊或開口時要用這種包邊板封邊。

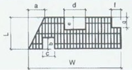
板長:與受荷扁鋼平行的方向上量的總尺寸,即使在比寬度短的情況,也稱為長度。設計或寫訂單時在尺寸后用字母LB(LOADBAR)標注。

板寬:與橫桿平行的方向所量的鋼格板尺寸,即使在比長度長的情況下,也稱為寬度。

沖齒:在扁鋼上沿沖制的半圓小缺口,以進一步增強防滑能力。

前護板:焊接在踏步板或樓梯口前緣,增強防滑能力。

擋邊板:比包邊板高出100mm,焊接在鋼格板需要的邊上或開口部位,防止人或者物件的跌落。擋邊板的高度可由用戶指定。

開孔或缺口:從鋼格板上切去一部分,以讓管道、設備、立柱或欄桿通過或避開障礙。
凈面積:鋼格板除去開孔和缺口部分的面積。(W x L)

毛面積:以鋼格板最大外圍尺寸計算的面積(W x L),包括開孔和缺口部分。一般合同面積都是按毛面積計算。



